
電話:0535-6722638
傳真:0535-6722378
郵箱:wh713813@163.com
24小時銷售熱線:
15254567828
24小時技術熱線:
15254567828
地址:煙臺市萊山區民裕大街807號煙臺億源科技股份有限公司南門
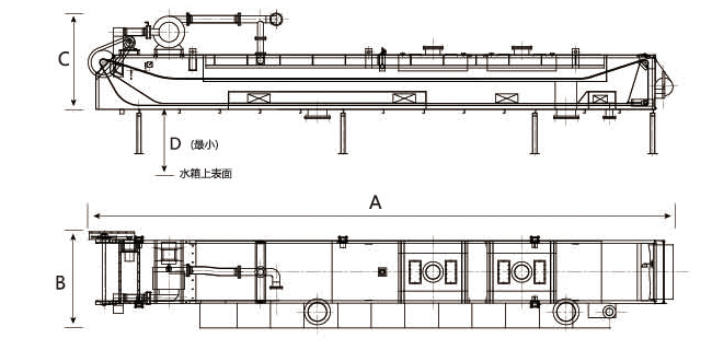
YYQFY空氣負壓過濾機
時間:2014-08-19 13:53 ??點擊:75

YYQFY系列氣負壓式過濾機由真空風機、驅動減速機、輸送鏈、過濾箱體、濾布、電控系統等幾部分組成。
YYQFY系列氣負壓式過濾機處理流量大;可將多臺過濾機組并聯使用;過濾精度可達15-80um;設備帶有增氧、除油、假日循環等功能,使乳化液的壽命大大延長;PLC、觸摸屏程序自動控制,自動、手動、假日循環等多種工作方式任意選擇。它與其它過濾機相比較具有獨特之處,在過濾過程中采用高效率差壓過濾及濾餅過濾,對污液中浮油及懸浮物可吹到末端濾餅中。真空壓力有數碼顯示,可調整預定值,自動走紙,整個程序可由真空負壓控制,時間控制及液位控制,實現連續過濾,循環過濾和完全過濾。
YYQFY系列氣負壓式過濾機適用于黑色金屬冷軋及有色金屬熱軋過程中工藝潤滑冷卻液的過濾;也適用于磨削加工冷卻液的過濾。


上一篇:沒有了 下一篇:YYSFY水負壓過濾機